合肥市順達國際旅行社辦公裝修工程
| 項目名稱 | 合肥市順達國際旅行社辦公裝修工程 | 行業屬性 | 金融/國企/事業機構 |
| 項目地址 | 合肥市包河區金中環廣場 | 項目造價 | 73.6萬 |
| 主關鍵詞 |
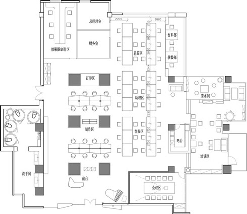
▄原建筑結構分析: 項目是金中環1201-1204四個區域,客戶要求在墻面不動的基礎上進行規劃。根據客戶的要求和節約成本的前提下進行合理的區域劃分和規劃。
▄設計需求: 整體空間體現出現代、簡約、時尚的風格,讓每一位步入這個空間的人都身不由己的想要享受這分舒適和柔和。
▄設計風格定位: 此案例要求簡約、時尚,所以應盡量利用簡潔的建筑手法,避免采用過去的造型,繁瑣的細部裝飾,過多過濃的色彩點綴。頂面采用礦棉板吊頂,地面采用米黃色地磚鋪貼,隔斷統一使用透明玻璃加磨砂,所有的隔斷都沒有隔到頂,整個辦公空間顯得更寬敞明亮。我們應該創造性的解決客戶的要求,營造一個符合企業品質并且是舒適、健康、富有人性的辦公環境,使企業的精神文化在各個角度體現出來。


北京鑄誠大廈辦公裝修工程
北京銀河SOHO辦公裝修工程
301醫院裝修工程
