合肥豪巴斯自助餐裝修工程
| 項目名稱 | 合肥豪巴斯自助餐裝修工程 | 行業屬性 | 酒店/餐飲/會所 |
| 項目地址 | 合肥市蜀山區科學大道6號合肥兩淮豪生大酒店 | 項目造價 | 54萬 |
| 主關鍵詞 |
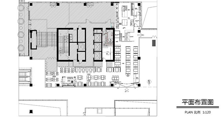
▄原建筑結構分析: 方案的設計時尚有獨到的見解與追求,設計師在裝修及擺設計方面取得與眾不同的效果是任何一個設計作品所追求的目標。
▄設計需求: 自助餐廳因食物品種繁多,方便顧客自行選取而廣受歡迎。在餐廳設計上,與非自助型餐廳不同的是,自助餐廳需要考慮顧客的來回走動以及取餐區的設置。為了減少取餐擁擠以及增大流動性,就要注意食物的擺放位置。另一個要注意的是食物和飲料以及收銀臺的位置分布。熱食區應該離就餐區較近,這有助于保證當客人到達他們的坐位時,食物仍然是熱的。
▄設計風格定位: 此案例定位是中高檔西式風格自助餐廳,其消費人群屬中高檔消費的白領階層,西餐廳設計的總原則是把握時代潮流,展現都市時尚,充分展示西式西餐廳特有的文化內涵和經營特色,西餐廳設計力求個性鮮明突出,達到引人注目、休閑舒適的最佳效果。 與此同時,人們開始更多地關注餐廳照明、色調、家具以及各種材料的質地,通過它們來改善食物的賣相,并且增加就餐環境的溫暖感。隨意取餐式自助餐廳通過精心設計的帶有描述性的標識來給第一次前來就餐的客人以指導。 在自助餐廳與全項目服務餐廳互相競爭的市場中,取餐處和用餐區的裝修是多變的,而且服務功能通常也是互動的。 此餐廳大膽采用強烈對比度的色彩,墻面大量使用涂鴉及噴繪,地面的多色幾何圖形地磚與頂面的海洋生物噴繪遙相呼應,再加上店內家具與軟裝,紅藍黃綠各種顏色的相融合,給人一種時尚、有趣、溫暖、復古、高雅的感覺。 取餐區:不同類別的取餐區在設計上,裝飾用材上的也大不相同,比如日式料理區,裝修上采用的就是原木色家具與擺設。 貴賓區:精美細致的綠色木條隔斷、溫馨優雅的燈光、頂面拱形與地面的立柱猶如畫龍點睛之筆,演繹出一場濃濃的復古情懷,足以讓客人仿佛置身于一場優雅的音樂會之中。


北京鑄誠大廈辦公裝修工程
北京銀河SOHO辦公裝修工程
301醫院裝修工程
